RESTAURACIÓN
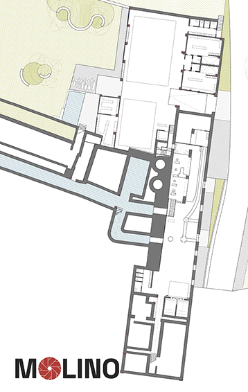
“Nunca demoler, eliminar o sustituir, siempre añadir, transformar y reutilizar”. Anne Lacaton y Jean Philippe Vassal. EL MOLINO se nos presentó como un caso clásico de una fábrica vieja, con espacios construidos improvisadamente y terriblemente mantenidos a lo largo de los años que necesitaba una renovación importante. No obstante, estaba bien ubicada y tenía un carácter fuerte: con el potencial necesario para la realización del Proyecto Serpis Vivo. Fue después que descubrimos la belleza de su infraestructura hidráulica, la robustez de su construcción y la singularidad de sus espacios. La arquitectura y el sitio son atípicos y atractivos, pero el edificio es muy grande y complejo por lo que su restauración requiere de ingenio, sensibilidad y criterio para lograr la fusión armoniosa y correcta entre dos tiempos: el pasado y el presente. El lema que nos ha guiado es el famoso "menos es más": minimizar las intervenciones que hacemos y minimizar los recursos que usamos para maximizar la belleza natural y la funcionalidad del lugar para los nuevos usos. Para llevar a cabo el proyecto, hay que tomar algunas decisiones radicales: - Eliminar las cubiertas. - Simplificar y consolidar las estructuras existentes. - Exaltar toda la infraestructura ligada al aprovechamiento del río. - Mejorar los accesos y la conexión del edificio con el sitio y el entorno. El proyecto presta especial atención a los recorridos y circulaciones, buscando emocionar y explicar el edificio al visitante al mismo tiempo que mantener la privacidad de los distintos usos y espacios. En cuanto a la estética general, se persigue la fusión antiguo - moderno: la yuxtaposición de vigas de madera, bovedillas de ladrillo enlucido de cal, bóvedas de fábrica y muros de mampostería, con un sensato despliegue tecnológico de hormigón, vidrio y metal.
Si Quieres ser parte de este emocionante proyecto Síguenos en nuestras redes y contáctanos por whatsApp
elmolinokwon.es elmolinokwon@gmail.com  +34 611 849 961